Years of Experience
Are you looking for architectural design services near me in Lahore? Niazi Group is the best place to find the best architectural services that combine new ideas, old ones, and practicality.
Niazi Group is one of the top architectural firms in Lahore. They focus on designing buildings based on your ideas. We have been providing architectural services in Lahore for more than 60 years, and we make designs for homes, offices, and businesses that last. Our team makes sure that every detail of your home reflects your lifestyle and the lively spirit of Lahore.
Niazi Group of Construction offers a full suite of architectural services designed to meet diverse needs. As one of the leading providers of architectural services in Lahore, Niazi Group offers a wide range of solutions to meet diverse project requirements.

Sustainability is at the heart of our architectural design services. We integrate eco-friendly materials, energy-efficient solutions, and smart building technologies to reduce environmental impact.

Are you planning a residential or renovation project and searching for architectural services near me? We provide personalized attention and professional guidance. From initial sketches to the final build, we turn your vision into reality.
Are you in search of residential architectural services in Lahore? We deliver personalized blueprints that boost property value by up to 30%. Our architects in Lahore create floor plans that optimize space and flow, with popular features including open-plan kitchens, rooftop terraces, and energy-efficient facades.
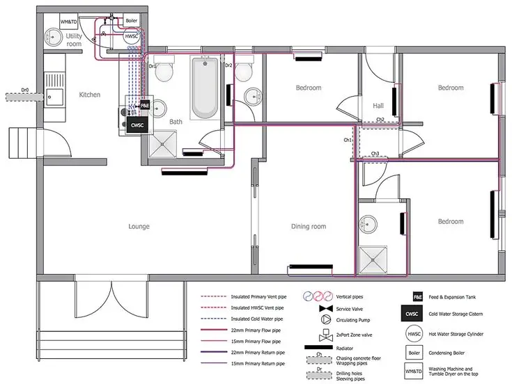
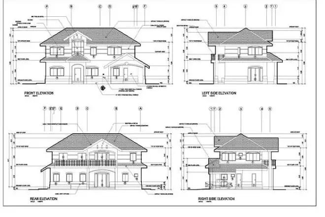
Your home is a reflection of your personality and lifestyle. We design our residential architectural services to create homes that are comfortable, elegant, and functional. If you are planning a new house, renovating an existing property, or building a luxury villa, our team makes sure that space planning is done carefully and modern design elements are used. We design homes with a focus on natural light, ventilation, energy efficiency, and smart use of space.
Stop searching endlessly for architectural design services near me. Contact Niazi Group today at 0321-9484072 and experience the difference of working with one of the leading providers of the best architecture services in Lahore.






Delivering the best architectural services requires a structured and transparent process. Our goal at Niazi Group is to provide stress-free architectural design services. Here’s how we work:
Discuss your vision with our architect in Lahore. Free site visits are available, or call us today at 0321-9484072 for an appointment.
After understanding your requirements, we move to the budgeting stage.
Sketch ideas incorporating the best architectural services standards.
3D renders, material selection, and approvals.
Oversee construction with our in-house engineers.
Handover with warranties and maintenance guides.
If you are searching for reliable architectural services in Lahore, Niazi Group stands out as a trusted name known for quality, innovation, and client satisfaction.
We know architecture is more than building design. Shape experiences and create spaces that improve daily life.
Architects usually charge a percentage of construction costs (5%–15%), hourly rates, or a lump sum. Cost depends on project complexity, structural engineering, and interior design detail.
Yes, along with design, we offer project coordination and supervision to ensure the construction aligns with approved architectural plans.
We provide professional architectural services in Lahore DHA, Bahria Town, Gulberg, Model Town, Johar Town, and other prime locations across the city.
Architects are licensed professionals who have had a lot of schooling and training. Designers, on the other hand, are more focused on aesthetics and don’t have to follow the same rules.